家中どこでも快適に過ごせる。 共働き家族が暮らしやすい家
仕事・家事・子育てを同時にこなす共働き家族が、 家にいる時間を少しでも楽に過ごせるように考えた住まいです。 家事動線やそれぞれが過ごしやすい空間づくりに加え、 どの空間でも温度差を感じにくい快適さを備えています。
このモデルハウスの
イベント・キャンペーン
-
キャンペーン

- 富士展示場
【WEB予約いただいた方に】🎁ご来場で選べる10種類の電子マネー・ポイント5,000円分プレゼント🎁
2026.4.23~2026.6.7
アキュラホーム富士展示場
-
キャンペーン

- 富士展示場
【🌸新生活を応援🌸】建築資金券最大1,000万円があたるビックチャンス✨
2026.4.18~2026.6.7
アキュラホーム富士展示場
このモデルハウスの
インフォメーション
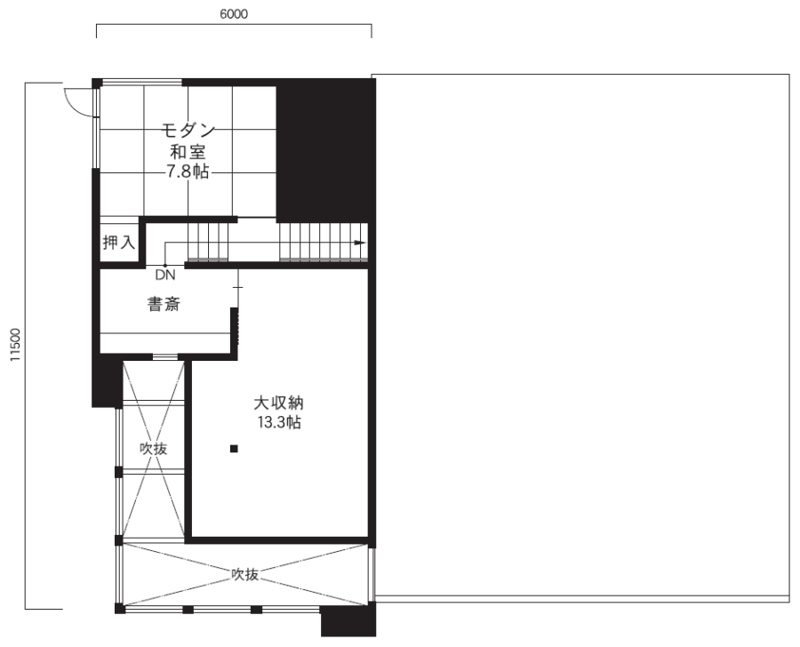
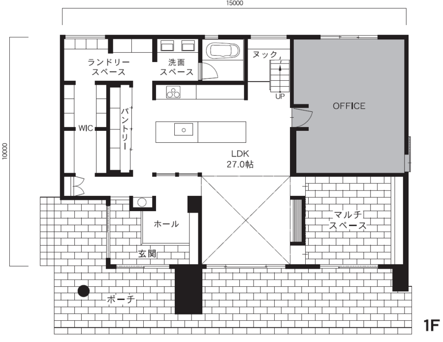
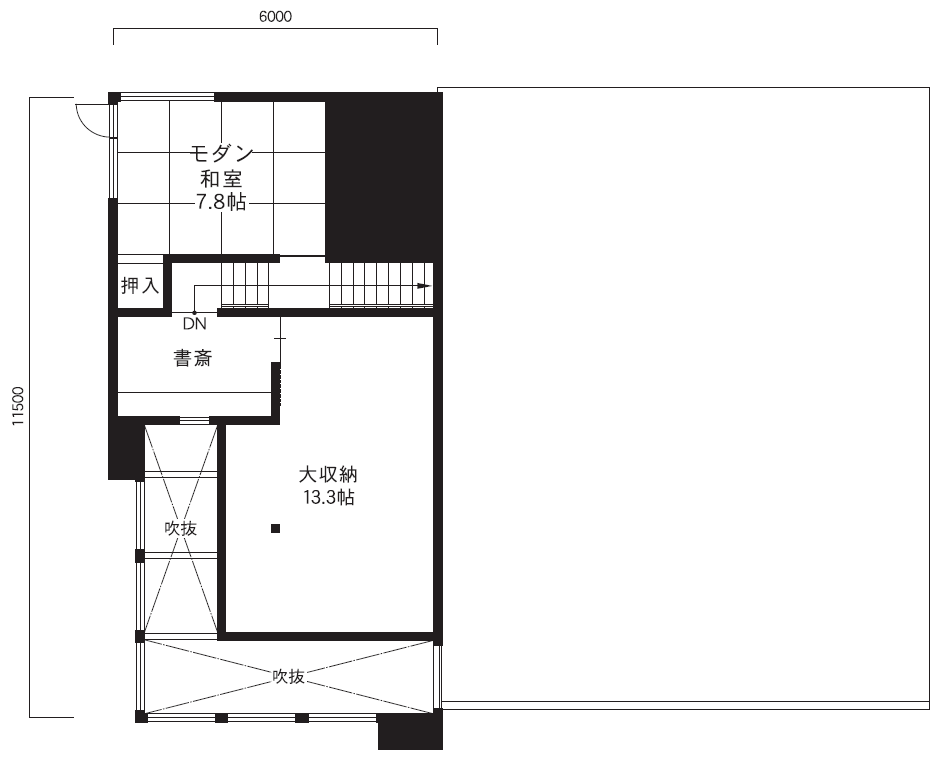
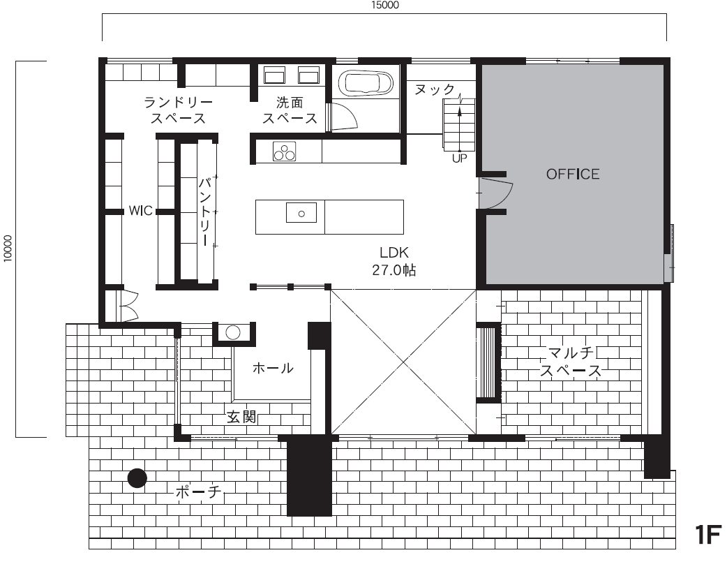
間取り
モデルハウス情報
- 住宅会社
- アキュラホーム
- モデルハウス名
- 家中どこでも快適に過ごせる。
- 電話番号
- 0545-32-2420
- 延床面積
- 323.81m²
- 工法
- 木造軸組み系工法
- 階建
- 2階建て住宅
- 耐震性
- 耐震
- メーカー保証
- 31年以上
- エネルギー
- 太陽光発電、オール電化
- 設備
- 24時間換気システム、全館空調、ペアガラス
※住まいの工法や性能に関する詳しい情報は「はじめての住まいづくり講座」をご覧ください。