ヘーベルハウスの重量鉄骨で叶える至高の空間。
重量鉄骨が叶える、至高のリビング。
開放的なLDKから望む、バルコニースペース。
LDKに落ち着きをもたらす、ダウンフロアリビング。
徒歩0分で行ける半屋外のアウトドアスペース。
素材と性能にこだわった、上質な暮らしをご提案いたします。
是非ご来場いただき、最新のヘーベルハウスをご体感ください。
◇よくあるご相談◇
□ おおよその金額、月々のお支払いを知りたい
□ 地震、水害対策が心配
□ 敷地を持て余している、狭小敷地、変形している、建物が密集している
□良い土地の見つけ方を知りたい
□ 家づくりの手順や期間を知りたい
□ 自分の家族に合った間取りを紹介してほしい
などなど、お気軽にご相談ください。
このモデルハウスの
イベント・キャンペーン
-
イベント

- 静岡展示場
「光熱費ゼロ円住宅」相談会
2/7(土)~2/28(土)
ヘーベルハウス静岡展示場
-
キャンペーン

- 静岡展示場
【期間限定新商品】坪単価85万円~のヘーベルハウス
2/1(日)~2/28(土)
ヘーベルハウス静岡展示場
このモデルハウスの
インフォメーション
ギャラリー
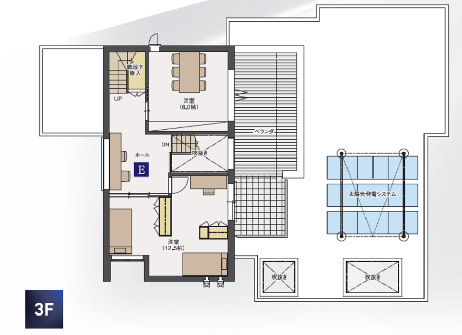
間取り
ルームツアー動画
モデルハウス情報
- 住宅会社
- 旭化成ホームズ(へーベルハウス)
- モデルハウス名
- FREX 3
- 電話番号
- 054-268-5672
- 延床面積
- 113坪
- 工法
- 鉄骨系プレハブ工法、コンクリート系プレハブ工法
- 階建
- 3階建て住宅
- 耐震性
- 制震
- メーカー保証
- 31年以上
- エネルギー
- 太陽光発電、HEMS、住宅用蓄電池
- 設備
- ビルトインガレージ、ウッドデッキ、屋上利用、広いバルコニー、床暖房、浴室換気暖房、24時間換気システム、全館空調、掘りごたつ、ペアガラス、全開放サッシ、フラットサッシ(レベル)、レジリエンス住宅、高気密・高断熱構造
※住まいの工法や性能に関する詳しい情報は「はじめての住まいづくり講座」をご覧ください。